Bydlete jako na dovolené
Řadový rodinný dům č. 5, právě ve výstavbě v Pasohlávkách. Dům je energeticky velmi úsporný (třída A) a disponuje třemi terasami o celkové rozloze 34 m² + dvě parkovací místa. Cihlová konstrukce budovy zaručuje dlouhou životnost a kvalitu. Ideální pro rodinu hledající pohodlné a moderní bydlení v klidné lokalitě s možností relaxace.
Domy jsou prodávány ve stavu tz. Super hrubé stavby, kdy exteriér a oplocení bude dokončeno.
Na každém kupujícím bude, aby si dokončil dle svého uvážení, jaké technologie budou dům ovládat a jaké designové vybavení zde bude instalováno nebo Vám dům můžeme dokončit dle našich standardů.
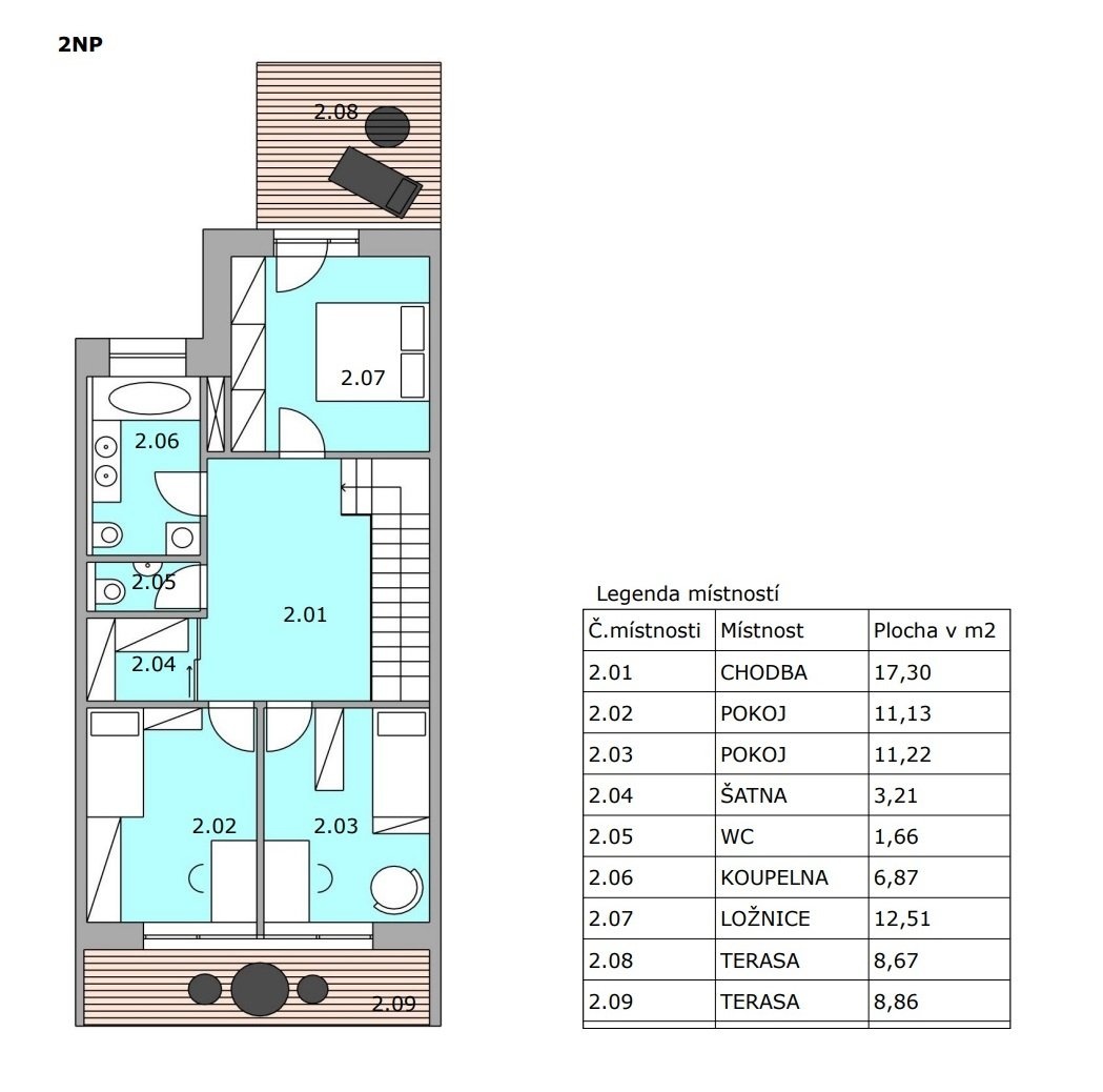
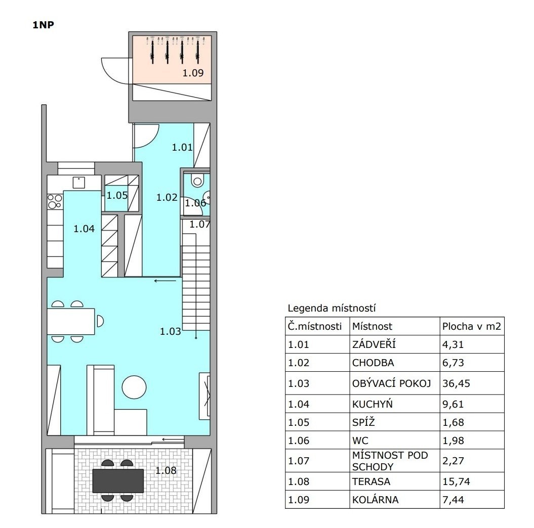
Jedná se o řadový rodinný dům 4+kk na pobřeží Mušovských jezer ve druhé etapě výstavby projektu Rezidence Pasohlávky. Výstavba byla zahájena a stylově bude navazovat na designovou eleganci a kvalitu první úspěšné etapy. Dům nabídne moderní a funkční dispozice, maximálně využitý prostor, dvě parkovací místa a pohodlné bydlení pro celou rodinu. Navržená dispozice může mít několik modifikací, jejich návrhy rádi zašleme, například až na 5+kk.
Zajištěn bude také dostatek užitkové vody pro závlahu a to z retenční nádrže.
Cena
7 980 000 Kč
Užitná plocha
134 m²
Umístění objektu:
Klidná část obce
Zaujala Vás nemovitost?

Vybrané nemovitosti k prodeji


Pronájem kanceláří 79 m² Jakubské nám, Brno město
26 990 Kč za měsíc

Pronájem moderního bytu 1+kk, Brno v k.ú. Bystrc
12 000 Kč za měsíc






Nové bydlení v Pasohlávkách u vody
11 025 750 Kč

Bydlení přímo u vody
11 285 750 Kč





