Bydlete přímo u vody
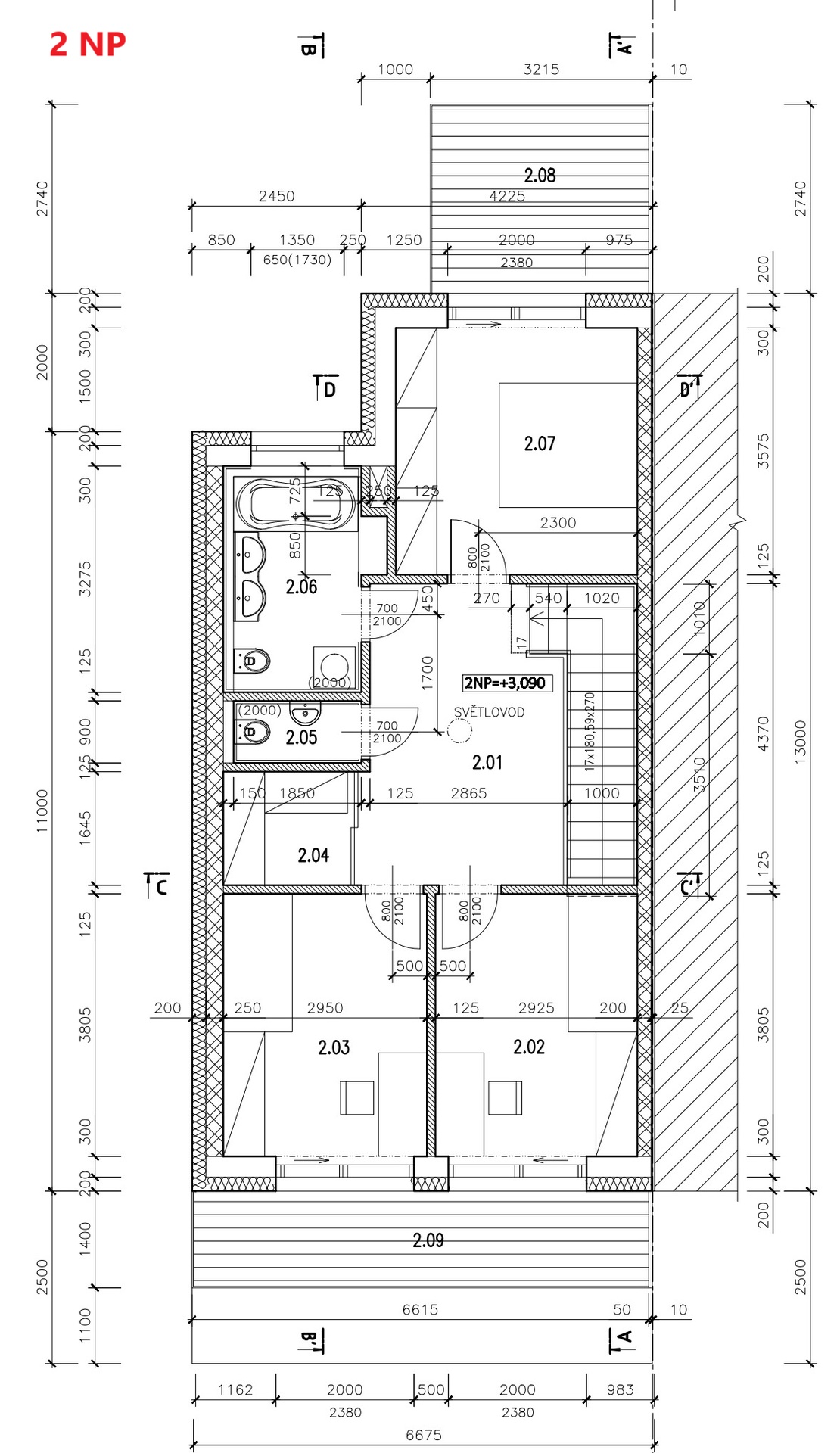
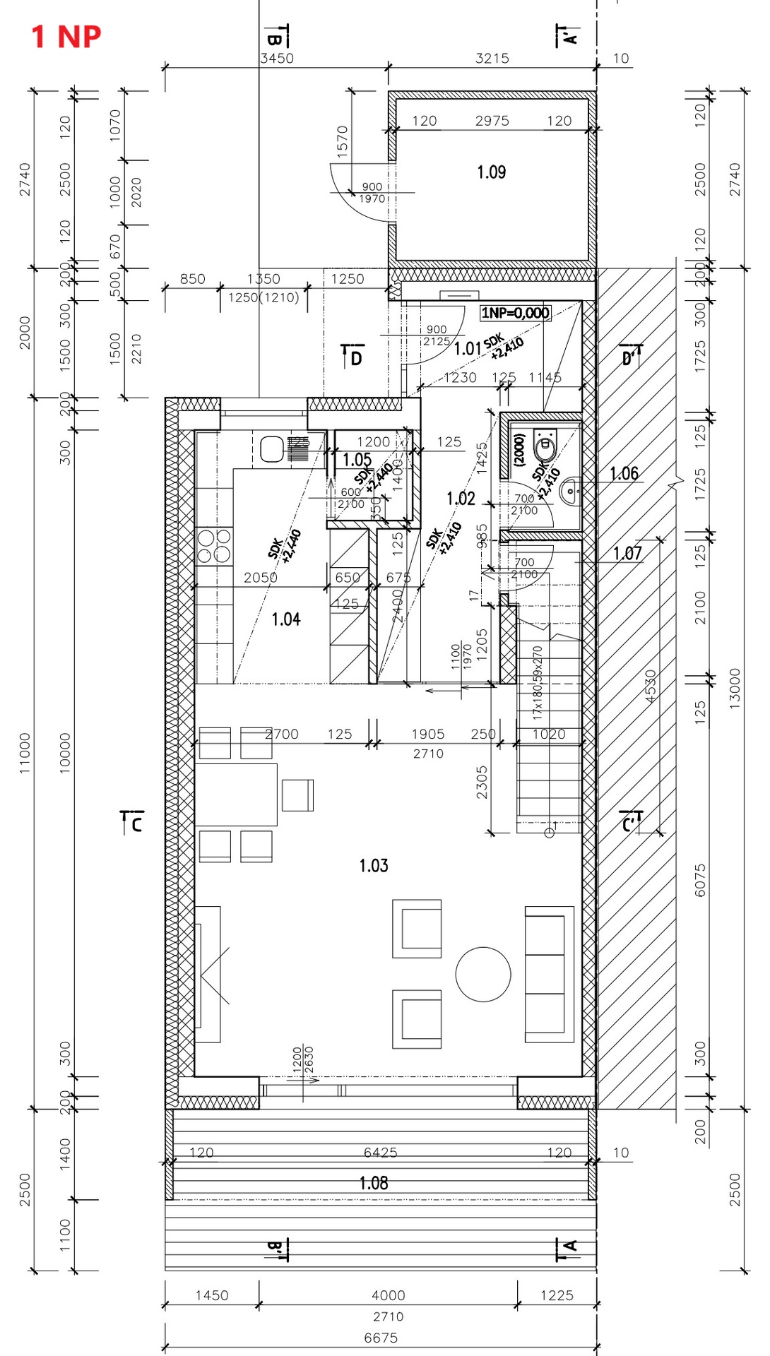
Nový rodinný dům 4+kk, č. 5, v Pasohlávkách přímo u vody. Dům je energeticky velmi úsporný (třída A) a disponuje třemi terasami o celkové rozloze 34 m² + dvě parkovací místa. Cihlová konstrukce, hliníková okna, moderní a kvalitní design, retenční nádrže pro užitkovou vodu. Dům je ve výstavbě, lze tedy upravit vnitřní vybavení.
Cena
10 825 750 Kč
Užitná plocha
134 m²
Umístění objektu:
Klidná část obce
Zaujala Vás nemovitost?

Vybrané nemovitosti k prodeji

Pronájem ateliéru 2+kk s balkonem a sklepem, Brno-Trnitá
19 990 Kč za měsíc

Pronájem, Byty 1+1, 35 m², Brno-Bystrc, Štouračova 6
12 500 Kč za měsíc


Pronájem bytu 3+kk s lodžií, Brno – Trnitá
25 990 Kč za měsíc

Prostorný byt 3+1 s lodžií k pronájmu, Modřice
22 500 Kč za měsíc










