Bydlete jako na dovolené
Řadový rodinný dům č. 2, právě ve výstavbě v Pasohlávkách. Dům je energeticky velmi úsporný (třída A) a disponuje třemi terasami o celkové rozloze 34 m² + dvě parkovací místa. Cihlová konstrukce budovy zaručuje dlouhou životnost a kvalitu. Ideální pro rodinu hledající pohodlné a moderní bydlení v klidné lokalitě s možností relaxace.
a) domy jsou prodávány ve stavu tz. Super hrubé stavby, kdy exteriér a oplocení bude dokončeno.
Na každém kupujícím bude, aby si dokončil dle svého uvážení, jaké technologie budou dům ovládat a jaké designové vybavení zde bude instalováno.
b) nebo Vám dům můžeme dokončit na klíč
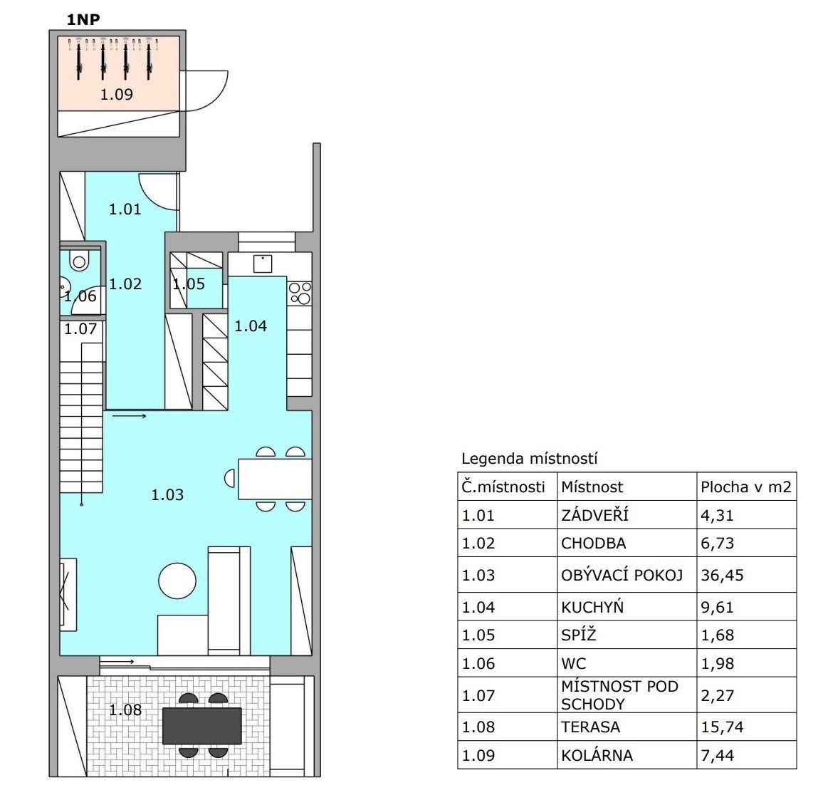
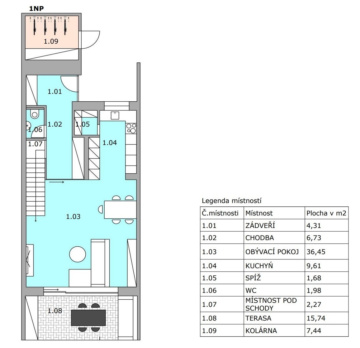
Jedná se o řadový rodinný dům 4+kk na pobřeží Mušovských jezer ve druhé etapě výstavby projektu Rezidence Pasohlávky. Výstavba byla zahájena a stylově bude navazovat na designovou eleganci a kvalitu první úspěšné etapy. Dům nabídne moderní a funkční dispozice, maximálně využitý prostor, dvě parkovací místa a pohodlné bydlení pro celou rodinu. Navržená dispozice může mít několik modifikací, jejich návrhy rádi zašleme, například až na 5+kk.
Zajištěn bude také dostatek užitkové vody pro závlahu a to z retenční nádrže.
Cena
7 980 000 Kč
Užitná plocha
134 m²
Umístění objektu:
Klidná část obce
Zaujala Vás nemovitost?

Vybrané nemovitosti k prodeji

Pronájem kanceláří 79 m² Jakubské nám, Brno město
26 990 Kč za měsíc

Pronájem cihlového bytu 1+kk, Brno – Trnitá
14 990 Kč za měsíc

Pronájem ateliéru 2+kk s balkonem a sklepem, Brno-Trnitá
19 990 Kč za měsíc

Pronájem, Byty 1+1, 35 m², Brno-Bystrc, Štouračova 6
12 500 Kč za měsíc


Pronájem bytu 3+kk s lodžií, Brno – Trnitá
25 990 Kč za měsíc









